This is Huntingdon

Huntingdon
Huntingdon
Client
Londonewcastle
Location
London, E1
Status
Planning Consented
Project value
Confidential
Size
186,495 sq.ft. GEA

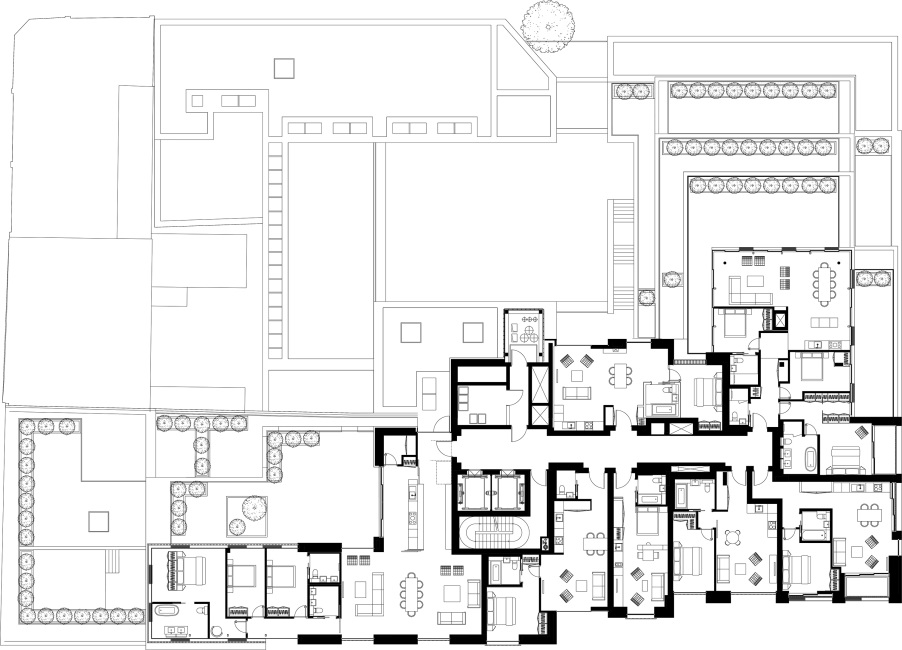
A 15-storey residential-led mixed use scheme in the heart of Shoreditch. Designed to sit harmoniously within the local context, the project respects the rich heritage of the area.

  • The development provides 78 new apartments plus a range of mixed-use retail and commercial uses at street level.

    The stepped architecture, combined with high ceilings and private terraces maximises amenity space, light and views, whilst an attractive, transparent and sculptural entrance provides views into the central sunken courtyard and residents spa and swimming pool.
Client
Londonewcastle
Location
London, E1
Status
Planning Consented
Project value
Confidential
Size
186,495 sq.ft. GEA