This is Oak Tree House

Oak Tree House
Oak Tree House
Client
Westbourne Capital Partners
Location
London, NW8
Status
Current
Size
107,596 sq.ft. GEA

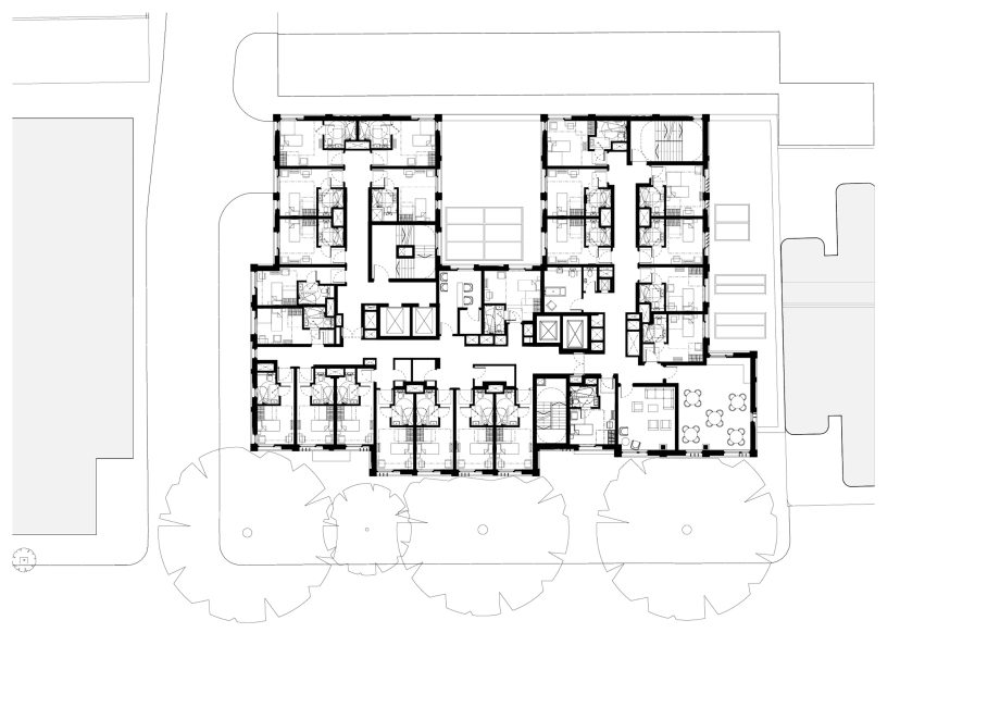
Oak Tree House combines high quality care accommodation and affordable housing in one unified building located in St Johns Wood. 

  • The development provides a 121-bed care home on the lower floors and 12 affordable residential apartments above.

    Flexible design principles allow each care floor to operate independently whilst being serviced by shared ground floor facilities. This provides flexibility for the operator to deliver varied levels of care.

    The upper level accommodation provides suite style rooms with views to the south over the trees back towards central London.
Client
Westbourne Capital Partners
Location
London, NW8
Status
Current
Size
107,596 sq.ft. GEA