This is Lamb's Passage

Lamb's Passage
Lamb's Passage
Client
Lamb's Passage Real Estate Limited
Location
Islington
Status
Planning Consented
Size
27,329 sq.ft GEA

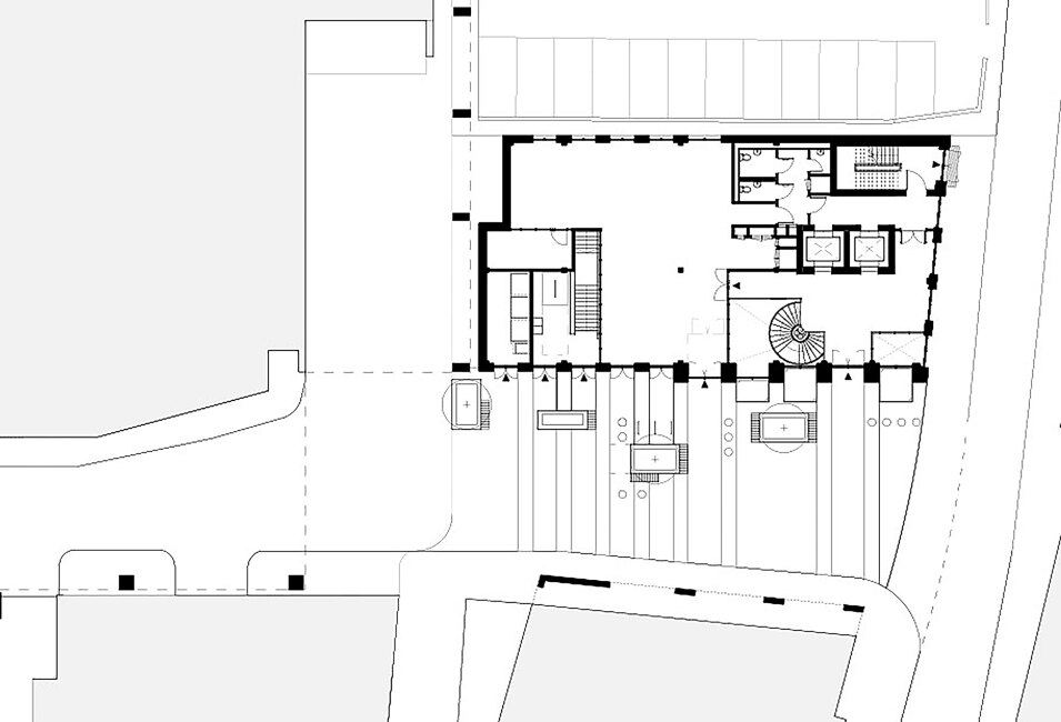
Lamb's Passage seeks to provide 7 storeys of high-quality new office accommodation, whilst incorporating and re-purposing the existing Grade II vaults in the basement. 

  • Apt were appointed to create proposals for the redevelopment of Lamb's Passage to provide a high-quality commercial office building.

    Designed to the highest architectural quality, and to achieve best-in-class sustainability credentials with improvements to pedestrian connectivity and experience. The proposals are flexible and accommodate both affordable workspaces and start-up ventures.

    The proposals also provide public realm enhancements to positively contribute to the character of the local area and act as a catalyst for regeneration, whilst also bringing the Grade II listed vaults back into use and making the local community aware of their existence.
Client
Lamb's Passage Real Estate Limited
Location
Islington
Status
Planning Consented
Size
27,329 sq.ft GEA