This is Parkside Infinity

Parkside Infinity
Parkside Infinity
Client
UNINN Parkside Development Ltd
Location
Coventry
Status
Complete
Project value
£32 Million
Size
21,360 sq.ft. GEA

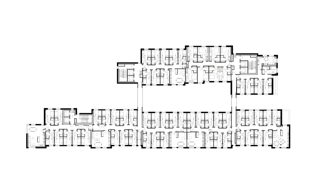
A high-quality, 504 room student development located in the heart of Coventry's university district. 

  • Designed to address the protected heritage views, the scheme creates a new landmark building for this important gateway site into the City.

    The designs work in harmony with the City by respecting and framing its historic sites such as the listed church spires. The completed scheme provides generous high-quality living and social spaces as well as a gym cinema room, Karaoke room and a new landscaped courtyard opening up on a landscaped garden.

    The choice of materials, textures and colours for the façade has been taken inside and utilised throughout,  including the furniture selection to achieve a high-quality feel while being cost effective.
Client
UNINN Parkside Development Ltd
Location
Coventry
Status
Complete
Project value
£32 Million
Size
21,360 sq.ft. GEA
/ 3
Generous communal spaces including study and relaxation areas are provided for the students to use and enjoy. A modern colour palette and high quality finishes are provided throughout.
/ 4
/ 3
/ 2